人気のハーモニー地区にある広々とした余裕を感じる住宅です!
ハウスクリーニング済みなのでいつでもご内覧いただけますので、お気軽にお問い合わせください。
- 価格
- 1,780万円
- 種別
- 中古戸建
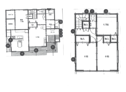
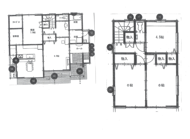
- 間取
- 5LDK
-
- 所在地
- 鹿児島県南さつま市加世田ハーモニー16番地3
- 交通
- バス(加世田高校前 停歩5分)
物件詳細
| 築年月 | 2011/7/29 | 新築/中古 | 中古 |
|---|---|---|---|
| 面積 | 129.96m² | 計測方式 | |
| バルコニー | 向き | ||
| 建物階数 | 地上2階 | 部屋階数 | |
| 建物構造 | 木造 | ||
| 敷地全体面積 | 延べ床面積 | 129.96m² | |
| 間取内容 | 洋室9.5畳 1室 洋室7.5畳 1室 洋室6畳 2室 洋室4.5畳 1室 LDK10畳 1室 | ||
| 駐車場 | 空有 | 取引態様 | 専任 |
| 引渡/入居時期 | 即時 | 現況 | 空家 |
| 地目 | 宅地 | 用途地域 | 無指定 |
| 都市計画 | 非線引き区域 | 地勢 | |
| 土地面積 | 254.34m² | 土地面積計測方式 | |
| セットバック | 無 | セットバック量 | |
| 建ぺい率 | 70% | 容積率 | 200% |
| 土地権利 | 所有権 | 接道状況 | 二方(除角地) |
| 接道方向1 | 南東 | 接道間口1 | 16.5m |
| 接道種別1 | 接道幅員1 | 6m | |
| 接道方向2 | 北西 | 接道間口2 | 16.5m |
| 接道種別2 | 接道幅員2 | 6m | |
| 周辺環境 |
加世田小学校 850m 加世田中学校 2,000m 加世田高校 350m |
||
| 設備・条件 | システムキッチン 給湯 洗髪洗面化粧台 シャワー 浴室乾燥機 バス・トイレ別 エアコン W.INクローゼット 室内洗濯機置き場 BSアンテナ 公営水道 排水浄化槽 バルコニー フローリング オール電化 駐車場2台以上可 インターホン有(モニター付) 上水道 下水道 電気 洗面化粧台 収納 浴室 | ||
| 物件番号 | harmony-1780g | ||
| 自社物 | 状態 | 売出中 | |
| カテゴリ | 加世田中学校区, 加世田小学校区, 売買(一戸建), 売買物件 | タグ | 売買:5LDK |
Loading...
※物件掲載内容と現況に相違がある場合は現況を優先と致します。
お問い合わせはこちらからお寄せください
お電話からのご予約・お問い合わせ
TEL:0993-53-4343
営業時間:9:00~18:00
定休日:水曜日
WEBからのご予約・お問い合わせ





























